Проект прошел Государственную экспертизу в 2025 году.
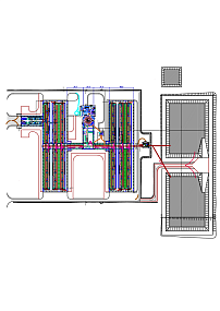
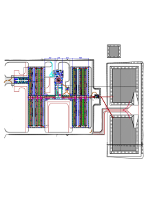
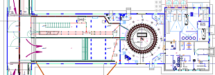
В составе проекта:
- родильный блок (корпус отела и корпус сухостоя);
- доильно-молочный блок с АБК №2;
- коровник №3 на 640 голов;
- прогоны для скота №3, №4;
- насосная станция смыва №2;
- навозоприемник №2;
- навозохранилища №4 и №5;
- емкость для сбора ливневых стоков.
Обратите внимание: каждый проект необходимо адаптировать под конкретные условия. Это касается как снегового и ветрового районов, так и особенностей местности.
Есть возможность покупки части проекта, которая вас интересует.
Хотите узнать больше? Оставьте заявку или напишите на почту: vmx@sovmolko.ru
Специалисты ГК СОВМОЛКО готовы помочь вам в кратчайшие сроки.
Животноводческий комплекс молочного направления на 1200 коров
В наличии
Год проектирования - 2024
Год прохождения ГОСУДАРСТВЕННОЙ ЭКСПЕРТИЗЫ. - 2025
1 800 000
Заказать товар
Задать вопрос
Заказать товар
Оставьте заявку на сайте, и мы свяжемся с вами в ближайшее время.
